Вы здесь

Проект Д17

Цена
от 3400000 руб.
Площадь
240 м²

Размер
11,5х11,6 м

 

 



Описание

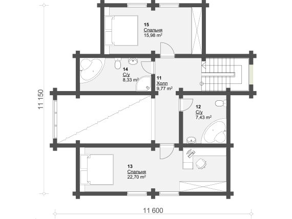
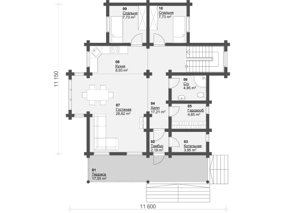
Дом 240м2 размер 11,5х11,6 м
Проект дома, общей площадью 240м2.
Материал — сосна
В доме предусмотрены:
- спальни
- кухня
- гостинная
- с/у
- котельная
- тамбур
- терраса
- балкон

В стоимость входит:

Фундамент – Ленточный фундамент.
Бревно оцилиндрованное хвойной породы (сосна, ель).
Сборка стен на нагеля или пружинный узел силы.
Устройство стропильной системы и кровли.
Кровля на выбор профнастил, либо металлочерепица.
Пиломатериал и крепеж.

Заказать подробный расчет

Заполните заявку и мы вышлем вам расчет по этому проекту