Вы здесь

Проект Д38

Цена
от 3200000 руб.
Площадь
290 м²

Размер
14 х 16 м

 

 



Описание

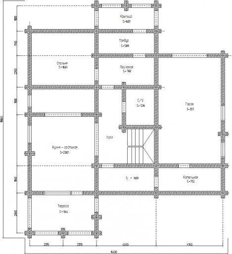
Дом 290м2 размер 14х16
Проект дома, общей площадью 290м2.
Материал — сосна
В доме предусмотрены:
- спальни
- кухня
- гостинная
- с/у
- котельная
- тамбур
- терраса
- балкон
- гараж

В стоимость входит:

Фундамент – Ленточный фундамент.
Профилированный брус хвойной породы (сосна, ель).
Сборка стен на нагеля или пружинный узел силы.
Устройство стропильной системы и кровли.
Кровля на выбор профнастил, либо металлочерепица.
Пиломатериал и крепеж.

Заказать подробный расчет

Заполните заявку и мы вышлем вам расчет по этому проекту